Vente Mobil home Rapidhome Lodge 8073
6 personnes
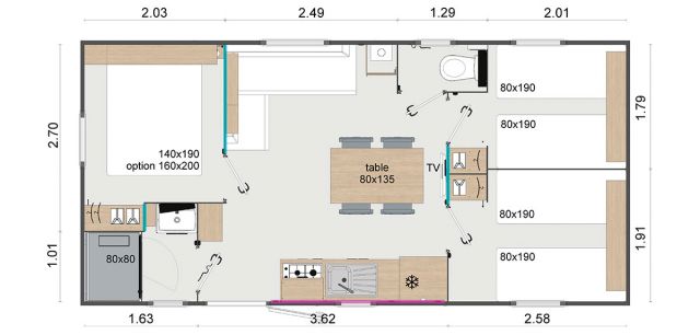
3 chambres
2023
Avec ses trois chambres, tout le monde trouve sa place
Modèle : Lodge 8073
Marque : Rapidhome
Gamme : Lodge
Surface : 31 m2
Longueur : 7.82 m
Largeur : 3.7 m
Prix total TTC : 38 990 €
Prix départ usine TTC : 36 200 €
Prix transport : 1 920 €
Prix installation : 750 €
