Vente Mobil home Rapidhome Elite 1153
- Equipements de série : bardage vinyle, Menuiseries extérieures anthracite, sèche serviette dans la SDB, réfrigérateur, Four, volets roulants chambres, lit sur vérin, canapé résidentiel convertible, convecteurs toutes pièces, hotte
Options non comprises dans le tarif du model exposé : Isolation Renforcée, Isolation Tuyaux, Lave main, Poubelle TRI - TOTAL des OPTIONS : 2 055 €
Modèle : Elite 1153
Marque : Rapidhome
Gamme :
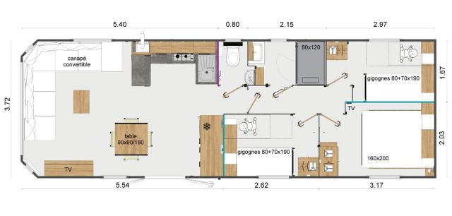
Surface : 40 m2
Longueur : 11.3 m
Largeur : 4 m
Disposition : Panoramique
Prix total TTC initial : 62 156 €
Prix total TTC promo : 58 655 €
Prix départ usine TTC : 0 €
Prix transport : 0 €
Prix installation : 0 €
